Важно!

 

Установка обогревателя снаружи здания разрешается только под крышей или навесом, для недопущения попадания влаги на электрические соединения обогревателя. 

Установка фильтра непосредственно перед обогревателем недопустима! 

 

 

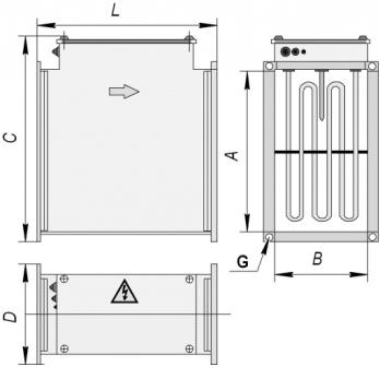
Электрические обогреватели типа SVPH-E предназначены для нагрева воздуха и применяются в канальных системах вентиляции и кондиционирования воздуха промышленных и общественных зданий. Обогреватели изготавливаются в девяти типоразмерах в зависимости от соединительного фланца воздуховода. В качестве нагревающих элементов в обогревателях типа SVPH-E используются трубчатые электрические элементы (ТЭНы). Широкий диапазон электронагревателей (от 3 до 60 кВт). Корпус обогревателя выполнен из оцинкованного стального листа. Точное поддержание температуры приточного воздуха, сниженная нагрузка на электрическую сеть за счёт применения равных ступеней мощности. Защита от перегрева осуществляется двумя встроенными термостатами, гарантирующая без- опасную и надёжную работу.Рабочая температура электрических обогревателей типа SVPH-E от –40 до +40°С. Электроизоляция IP 40. Питающее напряжение 220 В и 380 В (в зависимости от модели). Рекомендуется использовать фильтры SFP или SFPK, которые полностью обеспечивают защиту от загрязнения электрических обогревателей. Мощность электрических обогревателей регулируется автоматически блоками управления SBUP или SBUT, температура на вы- ходе за обогревателем должна быть ограничена 40°С. Установка фильтра непосредственно перед обогревателем недопустима. В случае, когда вентиляционная система отключается вручную (при отсутствии автоматического обдува ТЭНов), необходимо в первую очередь выключить обогреватель, а затем после остывания обогревателя отключить вентилятор и закрыть вентиляционные заслонки.  

Габаритные размеры и масса 

 

 

Кто на сайте

Сейчас 25 гостей онлайн

Авторизация